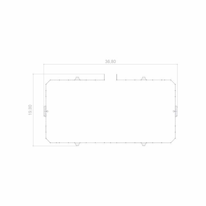
Saint James Multisport-Anlage - Draufsicht
Katalognummer: 11567